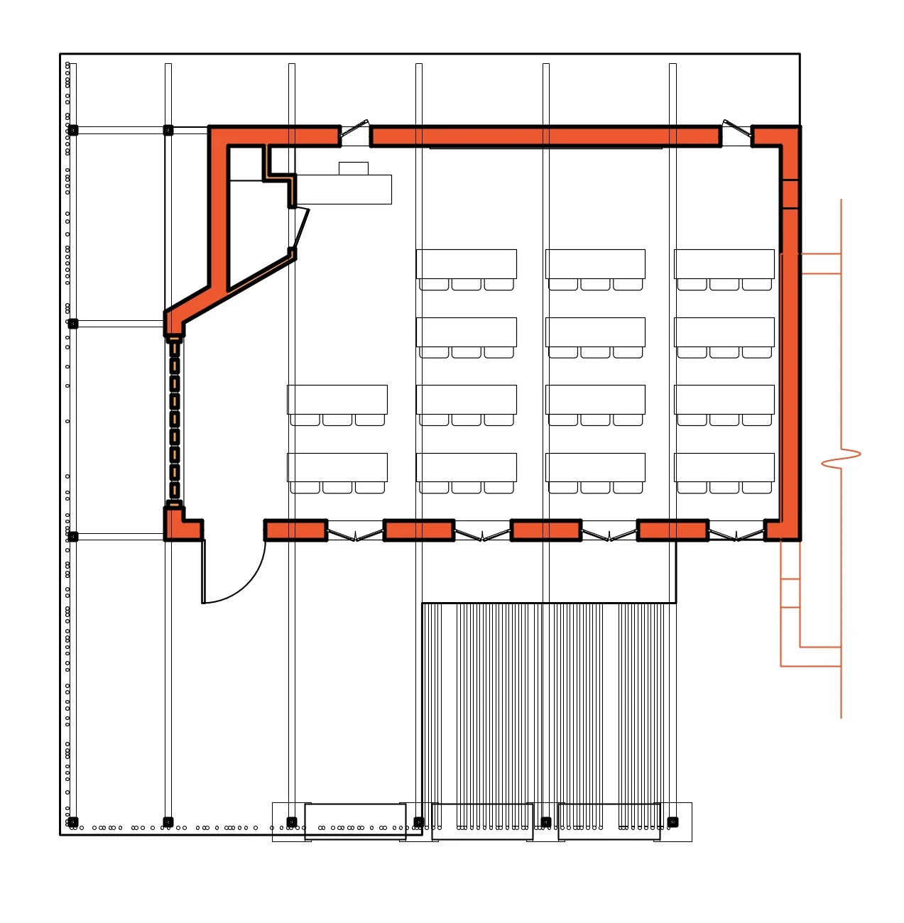
LAYEARTH
Type
Humanitarian
Location
Ghana, Africa
Team Member
Jacob Van de Roovaart
Description
LAYEARTH seeks to combine simple construction methods with local building materials to create a rammed earth classroom composed of unique layers. The design promotes a comfortable learning environment through understanding Ghana’s climate and culture. A bamboo layer, or screen, drives the aesthetic of the classroom and helps to not only shade the walls from the sun, but also to define the outdoor space.
